产品介绍
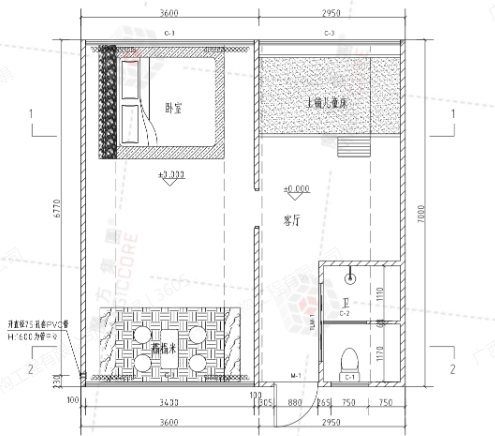
产品规格(单箱): L7m×W3.6m×H3.25m
占地面积: 25㎡(单箱)|67㎡(四箱)
户型设计(单箱):1室1卫
蜂巢木屋以 “探寻自然密码” 为设计灵感,六边形线条勾勒高级质感,乐高式叠拼模块化设计,适配情侣度假、家庭出行、团建活动等全业态,整装速达即运营。
内饰效果图
卫生间效果图
更多款型